Egni Pro Engenharia

Subestação de Média Tensão - de 13,8kV até 34,5kV

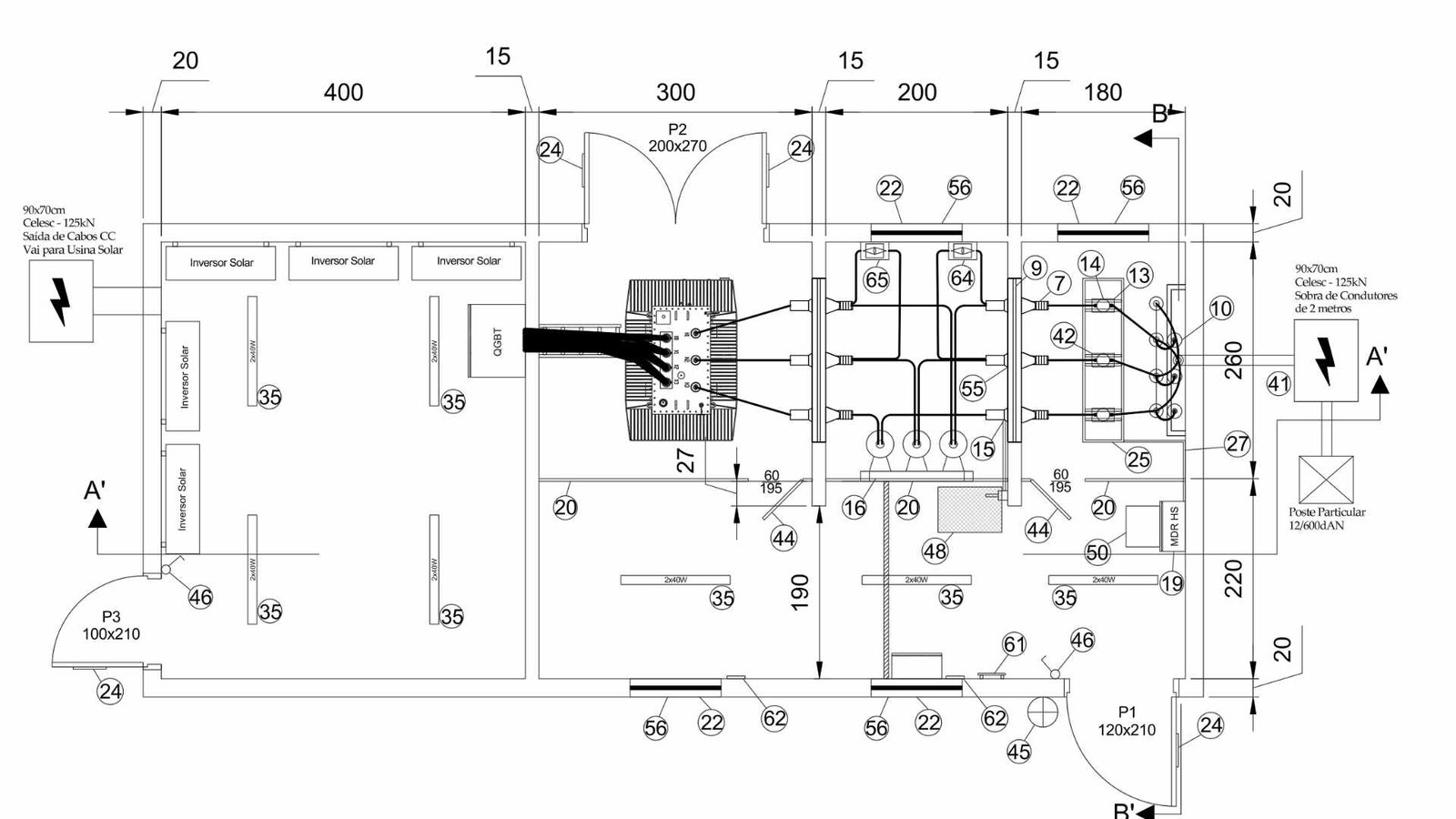
Essas subestações são responsáveis por conectar empreendimentos diretamente à rede de média tensão da concessionária, atendendo empresas consumidoras de médio e grande porte, bem como unidades geradoras que necessitam de conexão confiável e segura ao sistema elétrico.

Operando normalmente em níveis de tensão entre 13,8 kV e 34,5 kV, essas subestações realizam a medição e o faturamento da energia para a concessionária, bem como a proteção da rede, garantindo a qualidade, estabilidade e continuidade do fornecimento.

A Egni Pro Engenharia atua no projeto, execução e comissionamento de subestações de média tensão, desenvolvendo soluções sob medida que atendem às exigências técnicas e regulatórias das concessionárias, com foco em eficiência, segurança e confiabilidade operacional.

Perfil de Cliente:

Empresas consumidoras ou geradoras de médio e grande porte

Tensão de atendimento:

13,8kV à 34,5kV*

* À depender da disponibilidade de rede da concessionária

Nível de demanda:

Normalmente até 2,5MW**

Complexidade:

Média

** À depender da avaliação de cada concessionária.

Nossos Principais

Serviços

Contato e Informações

Entre em contato conosco através de um dos canais a seguir.

Eng. Assis Junior

  (49) 9 9806-5518

  assis@egnipro.com.br

Eng. Romulo B. Santos

  (49) 9 8865-0825

  romulo@egnipro.com.br

  Rua Geny de Jesus Afonso Carneiro, nº 25, Bairro Sorgatto, Caçador/SC

Fale conosco

Preencha este formulário que entraremos em contato com você.